
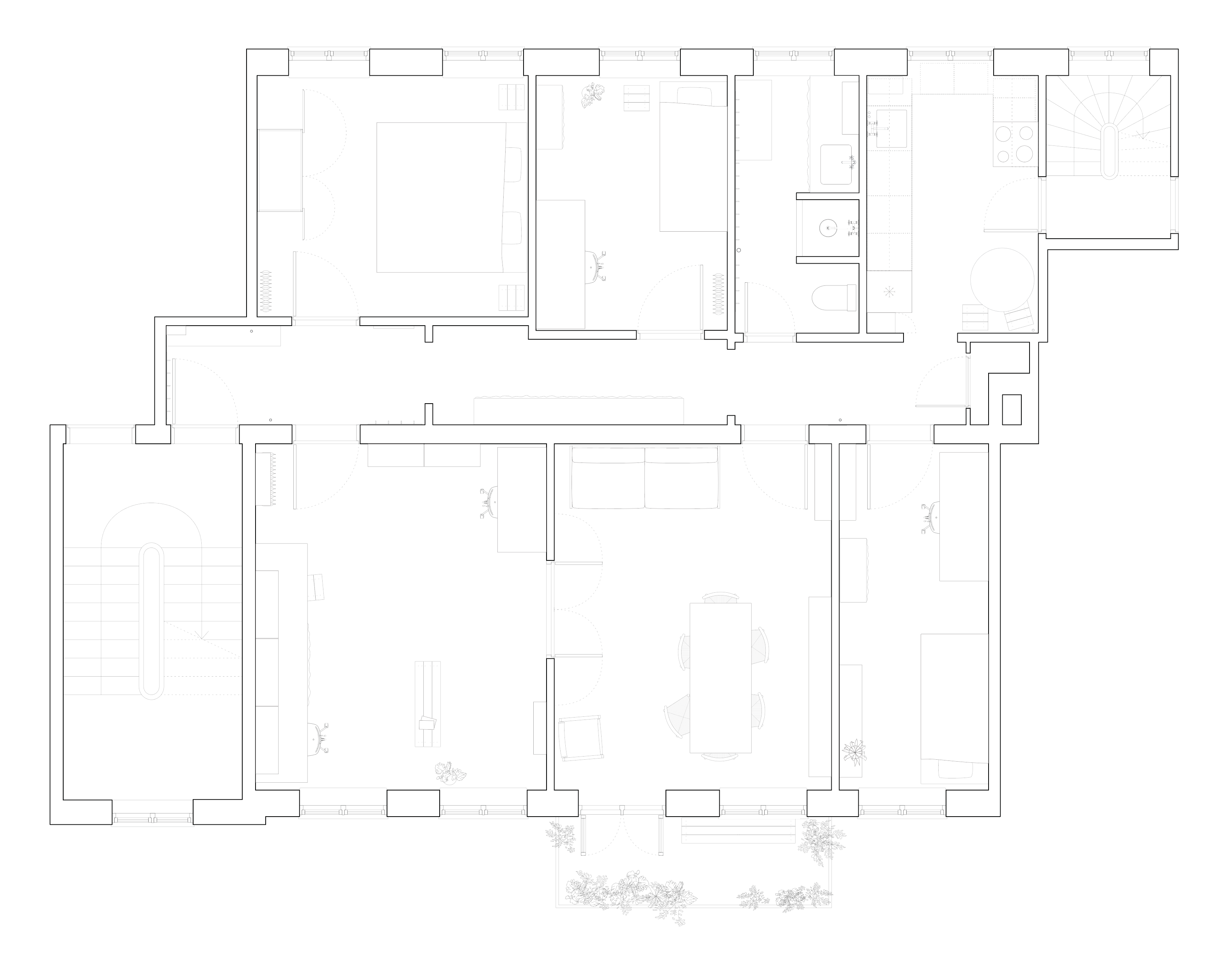
Ordrup Apartment & Studio
Project Type: Residential
Service: Renovation, interior architecture and design
Location: Ordrup, Denmark
Year: 2025-26
Renovation and interior architecture of my studio and our private apartment from 1924.
(ongoing)









Ordrup Apartment & Studio
Project Type: Residential
Service: Renovation, interior architecture and design
Location: Ordrup, Denmark
Year: 2025-26
Renovation and interior architecture of my studio and our private apartment from 1924.
(ongoing)






